Rénovation d’un triplex, Paris 4e

MISSIONS
Concept, études, sélection des entreprises, suivi de chantier

CLIENT
Particulier

CALENDRIER
Études 2024 | Chantier & Livraison 2025

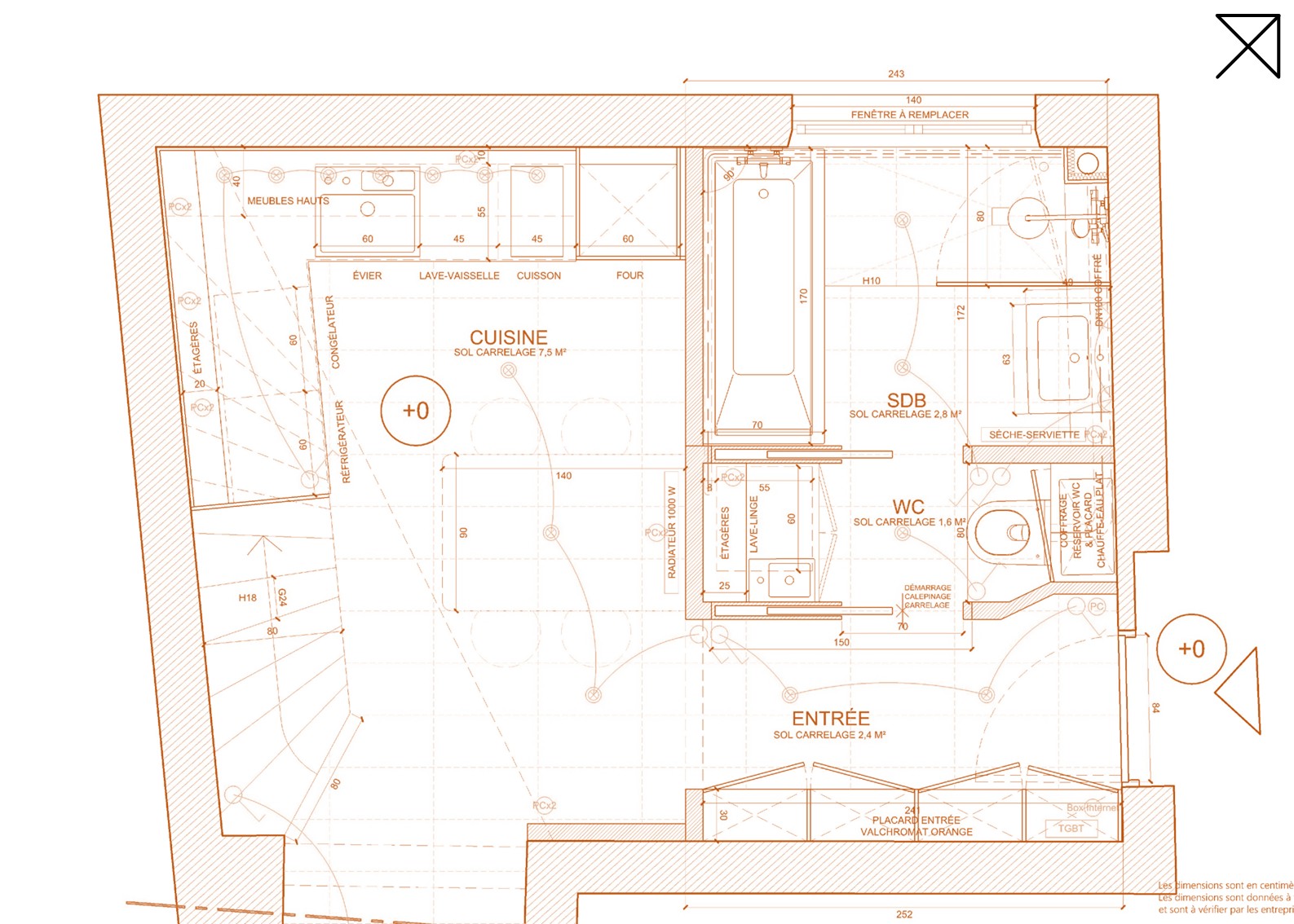
Volume atypique
Cet appartement de 60 m² répartis sur 3 niveaux donne sur la cour calme d’un immeuble ancien en plein Marais, Paris 4e. Avec sa grande hauteur sous plafond de 5 mètres, ses poutres apparentes et son plan en Z, c’est un volume atypique, qui à la fois séduit et intimide, et permet toutes les audaces.

Rénovation totale
La 1re étape consiste en un curage total du volume, qui va permettre de vérifier l’état de la coque. Une fois la coque vidée, les sols et les murs sont insonorisés pour améliorer le confort acoustique.

Un triplex en mode loft
Le projet prévoit un cloisonnement minimal. Il s’agit de cloisonner ce qui doit l’être – la salle de bain, les sanitaires – tout en laissant les volumes ouverts et l’espace fluide. L’idée est de créer un loft avec des espaces différenciés dans leur fonction, en jouant sur les différents niveaux et les recoins : entrée, séjour, salle à manger, cuisine, salle de bain avec douche et baignoire, WC séparés, chambre et coin bureau en mezzanine.

Jouer sur les couleurs et matériaux
Les teintes claires permettent d’agrandir visuellement l’espace : murs dans un blanc légèrement cassé, parquet en chêne naturel. Quelques couleurs d’accentuation singularisent et dynamisent les espaces : un orange cuivré et chaleureux pour l’entrée et les pièces d’eau ; un vert lichen tendre pour l’espace nuit ; un gris anthracite et un grège taupe pour la cuisine.

Multiplier les rangements
Chaque espace bénéficie de rangements généreux, cachés derrière des battants toute hauteur et sans poignée apparente pour plus de discrétion. Les rangements sont aménagés selon les besoins : penderies, étagères amovibles sur taquets et tiroirs.

Escaliers confortables
Les 3 niveaux sont reliés par des escaliers, qu’il fallait rendre confortables sans prendre trop de place. Les hauteurs de marche sont raisonnables avec un giron suffisant. Des rangements additionnels ont été aménagés sous les escaliers en partie basse.